(bö) Mit dem Startschuss für ein weiteres Wohnbaugebiet will die Gemeinde erneut in die heimatliche Infrastruktur investieren. Das Areal am Schleicherberg Süd wird „Am Sandberg“ heißen, hört man beim traditionellen Spatenstich für das etwa 1,2 Millionen Euro umfassende Projekt.
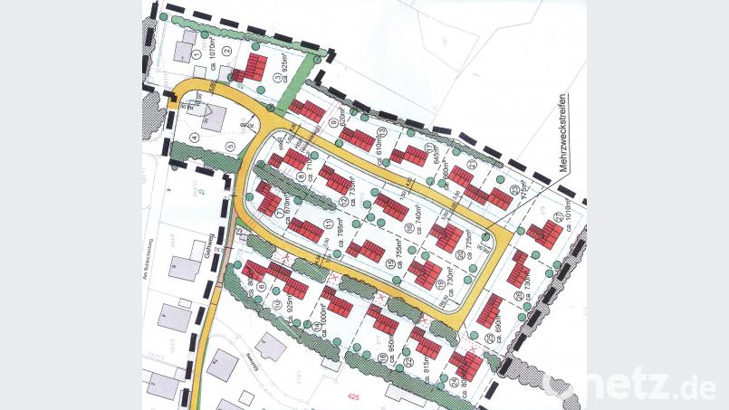
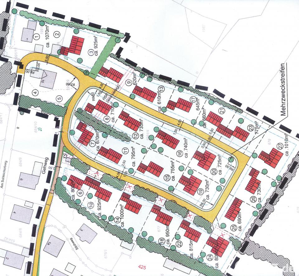
Die gesamte Erschließungsmaßnahme des Wohnbaugebietes ist an den kommunalen Dienstleiter, die KFB-Baumanagement GmbH Reuth, ausgelagert, so die Verantwortlichen. Insgesamt umfasst das neue Baugebiet 28 Parzellen. Fünf sind bereits bebaut, weitere fünf haben einen Eigentümer und zwei Grundstücke sind fest reserviert, informierte Bürgermeister Florian Junkes beim Ortstermin. „16 Bauparzellen bietet der Markt Hohenburg noch zum Verkauf an“. Die Grundstücksgrößen liegen zwischen 610 und 1010 Quadratmetern. "Der Quadratmeterpreis liegt bei 82 Euro", so Junkes. Ansprechpartner für Interessenten sind sowohl er (09626/ 921122) als auch Verwaltungsleiter Theo Fochtner (09626/ 921121).
Wie Junkes und Martin Engelhard von der gleichnamigen Baufirma versprachen, werden die Bauarbeiten bis zum Jahresende 2018 abgeschlossen sein. Die Planungen des neuen Wohnbaugebietes wurden vom Amberger Ingenieurbüro Reuther & Seuß vorgenommen.
Wie dazu Erhard Obendorfer vom Ingenieurbüro informierte, hat die überwiegend oval gehaltene Erschließungsstraße eine Gesamtlänge von etwa 420 Metern. An ihrer nordöstlichen Biegung ist sie über ein etwa 80 Meter langes Anschlussstück an das bestehende Ende der Erschließungsstraße „Am Schleicherberg“ angebunden. Von der nordwestlichen Biegung her ist eine Gehwegverbindung zur Erschließungsstraße „Stichweg“ vorgesehen. Der Gehweg, so sieht es der Ausbau vor, ist für Unterstützungsfahrzeuge befahrbar.
Die Entwässerung erfolgt im Mischsystem. Die Leitungslänge des Kanalsystems bemaß Erhard Obendorfer mit 355 Metern Länge. Die Hausanschlüsse werden in die Grundstücke hinein vorgerüstet und mit Steinzeugrohren erstellt. Die Wasserversorgung wird an die bestehende Wasserleitung mit einem Ringschluss mit der Wasserleitung im Wohnbaugebiet Am Schleicherberg und dem Stichweg verbunden.
Die Stromversorgung wird von der Bayernwerk AG vorgenommen, die Hausanschlusskabel werden in die Grundstücke verlegt. Insgesamt werden zwölf Straßenlampen aufgestellt.
Lichtwellenbreitbandkabel für die DSL-Ausstattung sind vorgesehen. Die gesamte Fertigstellung ist für 7. Dezember geplant.














Um Kommentare verfassen zu können, müssen Sie sich anmelden.
Bitte beachten Sie unsere Nutzungsregeln.