Punkt 7 der Gemeinderatssitzung hatte viele Zuhörer angelockt: „Freigabe einer circa 50 Meter langen Wegstrecke als Verbindung des Asternwegs und Lange Gasse“ stand auf der Tagesordnung. Gemeinderat Karl Liebl hatte die Idee zur Verbesserung des Verkehrsflusses in der Mai-Sitzung ins Spiel gebracht. Angesichts des Baugebiets, das an der „Langen Gasse“ hängt, forderte er weitere Ausweichmöglichkeiten. Dort seien über 80 Bauplätze und bereits 18 zur Bebauung freigegeben.
Bürgermeister Hermann Ach erinnerte an frühere Beschlüsse zum Thema: In den Sitzungen des Gemeinderats am 29. Juni 1999 und 6. Mai 2003 sei die bisherige Sperrung beschlossen worden. Der Rathauschef informierte das Gremium außerdem, zahlreiche Bewohner des Baugebiets hätten in den vergangenen Tagen mit ihm gesprochen und gegen die Öffnung argumentiert. Das Gemeindeoberhaupt und die Siedler befürchten, dass durch eine Öffnung der Verkehr dramatisch ansteigt. Josef Rauch sah diese Gefahr nicht. Hans Schnupfhagn befürchtete, dass die Kosten des Ausbaus des 50 Meter langen Straßenstückes an der Gemeinde hängen bleiben werden. „Im Übrigen brauchen wir in Moosbach keinen 'Mittleren Ring'." Zum Hinweis auf die Kosten erklärte der Bürgermeister, dass für die Erstellung des Straßenstücks von den Anliegern die gesetzlichen Erschließungsbeiträge von 90 Prozent der Kosten aufzubringen wären. Geschäftsleiter Andreas Hofmeister ergänzte, dies könnte unter Umständen alle Anlieger des Asternwegs betreffen. Erika Sauer meinte, die Leute sollten sich auf das verlassen können, was in den Jahren 1999 und 2003 beschlossen wurde. Mit 7 zu 4 Stimmen beschloss das Gremium, die Sperrung beizubehalten.
Fünf neue Stellplätze verlangt das Landratsamt Neustadt/WN vom Café Eger in Moosbach für die Erweiterung, da die Flächen des früheren Lebensmittelgeschäfts Ziegler im Erdgeschoss umgestaltet und in das bestehende Café integriert worden sind. Da dem Café diese Flächen nicht zur Verfügung stehen, muss ein Ablösevertrag mit dem Markt Moosbach abgeschlossen werden. Bürgermeister Hermann Ach schlug dem Gemeinderat vor, auf einen Ablösung zu verzichten, weil auch bei allen anderen bisherigen Fällen, etwa beim Pfarrheim, keine Forderungen gestellt wurden. Einstimmig beschloss das Gremium: Die Stellplatzpflicht des Cafés wird von der Gemeinde übernommen, und auf die Forderung nach einer Zahlung wird verzichtet.
Unter dem Tagesordnungspunkt „Landschaftskino Strehberg“ konnten sich viele Zuhörer nichts vorstellen. Am Aussichtspunkt Strehberg unweit von Moosbach erlebt der Wanderer ein Traumpanorama hinunter nach Moosbach, zum Eisenberg, zum Schloss Burgtreswitz und ins Pfreimdtal. Der Blick konzentriert sich dabei auf die beeindruckenden, je nach Jahreszeit wechselnden Naturschauspiele. Die Gemeinde plant dieses Naturbildnis in einem riesengroßen Holzrahmen einzufangen und diesen als eine Art Leinwand aufzustellen. Zahlreiche Sitzgelegenheiten, wie im Kino, lassen die Besucher abschalten und träumen. Das Ganze kostet etwa 20.000 Euro und wird aus dem Programm Leader mit 60 Prozent Zuschuss gefördert. Gemeinderat Erhard Scheuerer hielt den Standort „Strehberg“ für zu wenig frequentiert. Konrad Lingl wollte die Attraktion lieber an dem seit langer Zeit geplanten Radweg zum Anschluss an den Bocklradweg sehen. Mit einer Gegenstimme sprach sich das Gremium schließlich für die Installation des Landschaftskinos aus.
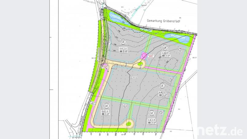
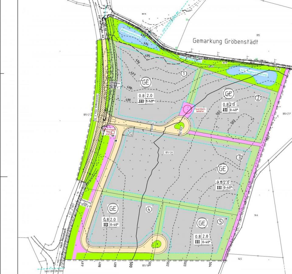
Vor zwanzig Jahren erstellte die Gemeinde Moosbach den Bebauungsplan „Gewerbegebiet Hammermühle“. Nun scheint sich in dem Gewerbegebiet an der Staatsstraße 2160, nur 200 Meter von der Anschlussstelle „Pleystein“ der Autobahn Nürnberg – Prag entfernt, endlich etwas zu tun: Der Rathauschef nannte zwar keine Namen, er schlug aber eine weitere Änderung des Bebauungsplanes nach den Wünschen des Interessenten vor. Danach sollten die Parzellen 4 und 5 zu einer Parzelle vereint werden. Außerdem sollen die runden Wendehammer durch rechteckige ersetzt werden. Weiterhin sollen die baurechtlichen Voraussetzungen für einen maximal zehn Meter hohen Bürotrakt mit Wohnung geschaffen werden. Schließlich sollen die Wasserflächen für den Feuerschutz von der nördlichen an die westliche Seite des Gewerbegebietes, angrenzend an die Staatsstraße, verlegt werden. Die Änderungen des Bebauungsplanes dienen auch dazu, dass der Betrieb sein Vorhaben im Genehmigungs-Freistellungsverfahren realisieren kann.




















Um Kommentare verfassen zu können, müssen Sie sich anmelden.
Bitte beachten Sie unsere Nutzungsregeln.