Auf einer Fläche von rund zwölf Hektar will die Ziegler-Group ein Werk für die Herstellung von Holzfaser-Dämmplatten errichten. An der Ecke Umgehung/Straße nach Hermannsreuth soll mit dem Bau bereits im kommenden Jahr begonnen werden. Von der Investition erwartet die Stadt rund 74 neue Arbeitsplätze, aber auch eine Reihe von neuen Wohnhäusern, die die Ziegler-Group für Beschäftigte und Interessenten errichten will.
Der erste Schritt ist die Korrektur des Flächennutzungsplanes, der bislang in dem gewünschten Bereich ein Gewerbegebiet vorsieht. Parallel dazu soll dann gleich der Bebauungsplan für das neue Industriegebiet auf den Weg gebracht werden. Stadtplaner Adrian Merges vom Büro TB Markert konnte bei der Sondersitzung des Stadtrats am vergangenen Donnerstag einen ersten Entwurf des neuen Industriegebietes vorstellen. Und der enthielt schon sehr detaillierte Angaben.
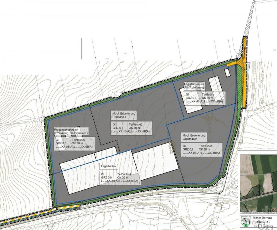
Nach den Ausführungen des Stadtplaners soll das künftige Industriegebiet von der Straße nach Hermannsreuth her eine Zufahrt erhalten. Dabei werde auch eine Linksabbiegerspur vorgesehen. In dem ersten Plan finden sich auch eine komplette Eingrünung der Fläche, rund 40 Bäume sowie ein Bereich für die Regenrückhaltung südlich des Areals. Im Zuge der Ausweisung würden auch rund fünf Hektar Ausgleichsfläche notwendig.
In dem Entwurf des Planungsbüros TB Markert finden sich auch Angaben zur Lage der Gebäude sowie deren Beschaffenheit. So sollten nach Süden zur Umgehung hin Bauhöhen bis 30 Meter vorgeschrieben werden, nach Nordenwesten hin könnten sich Bereiche mit Höhen bis zu 50 Meter finden. Dort wäre dann auch das Heizwerk oder die Trocknungsanlage vorgesehen. Konkrete Emissionsbegrenzungen würden sich erst im Laufe des Verfahrens ergeben.
Eine Veränderung braucht es weiter für die südliche Fläche zwischen Umgehung und dem Stadtgebiet. Dort sieht der Flächennutzungsplan aktuell ein Wohngebiet vor. Eine Realisierung neben dem künftigen Industriegebiet erachtete der Stadtplaner aber als schwierig. Deshalb sollte diese Fläche in eine „beschränkte Gewerbefläche“ umgewandelt werden. Hier könnten sich etwa Handel oder Dienstleistung ansiedeln, also eher ein „ruhiges Gewerbe“.
Gottfried Beer (SPD) fragte zur Eingrünung nach. Der Stadtplaner verdeutlichte, dass rund um das Areal ein fünf Meter breiter Streifen vorgesehen sei. Der Stadtrat verwies weiter auf eine Absicht der Staatsregierung, die künftig Photovoltaik-Anlagen auf Dächern von Industriegebäuden vorschreiben will. Andreas Sandner, der als Vertreter der Ziegler-Group zur Sitzung gekommen war, erklärte, dass im Unternehmen generell die Installation solcher Anlagen überlegt würde. Bei den Planungen für Bärnau werde das im Hinterkopf behalten.
Der Stadtrat stimmt dann geschlossen dem Verfahrensstart zur Änderung des Flächennutzungsplanes zu. Das Büro TB Markert soll die frühzeitig Beteiligung der Öffentlichkeit und der Behörden vornehmen. Parallel dazu beschloss das Gremium die Aufstellung des Bebauungsplans für das Industriegebiet „Am langen Rain“. In dem ebenso einstimmigen Beschluss heißt es: „Wesentliches Ziel der Planung ist die Ermöglichung einer gewerblichen bzw. industriellen Nutzung … zur Stärkung des Wirtschaftsstandorts Bärnau und zur Schaffung von Arbeitsplätzen."















Um Kommentare verfassen zu können, müssen Sie sich anmelden.
Bitte beachten Sie unsere Nutzungsregeln.