Zum Inhalt springen ↓
E-Paper
Newsletter
Anzeigen
Trauer
Podcasts
Abo & Service
OnetzPlus abonnieren
onetz
abo
Ort / Thema:
Suchen
Login
Menü
Walther Hermann
Artikel
OnetzPlus
Eschenbach
30.11.2022
Urnenbodengräber für städtischen Friedhof?
Es werden immer mehr Flächen auf dem städtischen Friedhof in Eschenbach frei. Urnenbodengräber könnten künftig die Lücken füllen.
OnetzPlus
Eschenbach
29.11.2022
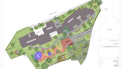
„Masterplan Kita Eschenbach“: Amphitheater und Erlebnisweg
Den Neu- und Umbaumaßnahmen an der städtischen Kindertagesstätte soll die gärtnerische Gestaltung folgen. Die vorläufige Kostenschätzung dafür beläuft sich auf circa 960 000 Euro. Und den Kindern soll einiges geboten werden.
Eschenbach
28.11.2022
Adventsmarkt des Heimatvereins: Glühwein, Met und heiße Maronen
Brauchtum und Kunsthandwerk verschmelzen beim Adventsmarkt des Heimatvereins zu einer Symbiose. Haus, Hof und Remise des Taubnschusteranwesens locken ebenso wie die Wassergasse mit ihrer stimmungsvollen Atmosphäre Massen an Besuchern an.
Eschenbach
27.11.2022
OGV Eschenbach hat Spaß beim Binden von Adventskränzen
Zu einem Dufttempel wurde in den vergangenen Tagen die Festhalle des Sportclubs. Der Duft von Nadelholzzweigen und Apfelpunsch schuf über Stunden eine wohlige Arbeitsatmosphäre. Der Obst- und Gartenbauverein hatte zum Binden von Adventskränzen und -gestecken geladen und …
Eschenbach
27.11.2022
Förderverein Wirtschaftsschule Eschenbach bestätigt Albert Nickl
Der Förderverein ist aus dem Leben der Wirtschaftsschule nicht mehr wegzudenken. Offenkundig wurde dies bei der Mitgliederversammlung, zu der Albert Nickl auch neue Mitglieder willkommen hieß. Er berichtete von vielfältiger Unterstützung, mit der „mehr Leben in die Schule …
Eschenbach
25.11.2022
Eschenbach erstellt Nutzungskonzept "Wohnen im Alter"
Mit einem Nutzungskonzept „Wohnen im Alter“ greift der Stadtrat in einer Sondersitzung eine zentrale Frage unserer Zeit auf. Begleitend dazu soll eine Beratungsoffensive folgen.
Eschenbach
24.11.2022
SCE-Judoka Oberpfalzmeister
Als Oberpfalzmeister kehrten fünf junge Judoka des SC Eschenbach aus Schwandorf zurück. Elias Czogalla, Lennard Metzner, Marc Milfort, Benedikt Raps und Tom Teschke hatten sich für das Turnier in der Altersklasse U 11 mit der DJK Ensdorf zu einer Mannschaft …
Eschenbach
24.11.2022
OGV liefert Beitrag zum Streuobstpakt
Eschenbach beteiligt sich am Bayerischen Streuobstpakt. In Kooperation mit dem Naturpark nördlicher Oberpfälzer Wald ergriff der Obst- und Gartenbauverein auf örtlicher Ebene dazu die Initiative und pflanzte auf einem Wiesengelände bei Bärnwinkel acht Hochstammobstbäume. …
Eschenbach
22.11.2022
Lockender Weihnachtsmarkt beim Hexenhäusl
Das Hexenhäusl am Rußweiher hatte zum Weihnachtmarkt geladen. Für die Eschenbacher und viele Interessenten aus dem Umland war dies der Grund für eine Winterwanderung. Wie auf Bestellung war der erste Schnee gefallen und verzauberte die Landschaft in ein Winteridyll. …
Eschenbach
22.11.2022
Eschenbacher Weihnachtsbeleuchtung auf Sparflamme
„Die Weihnachtsbeleuchtung am Stadtplatz verläuft in diesem Jahr auf Sparflamme“. Mit dieser Ankündigung wartete Bürgermeister Marcus Gradl im Stadtrat auf und zeigte sich überzeugt, dass die kleinen Lichterketten an den Baumreihen als Beleuchtung ausreichen. Die …
Eschenbach
20.11.2022
Vorweihnachtliche Freude beim Kerzengießen
Kerzenlicht schafft besonders in der dunklen Jahreszeit eine eigne Atmosphäre mit stimmungsvollem Licht. Das Angebot der Imker, Kerzen gießen, findet daher seit zwei Jahrzehnten regen Zuspruch. Ihr Vereinsheim neben der TÜV-Anlage wurde am Wochenende zum zweiten Mal in …
Eschenbach
20.11.2022
Erlebnisse mit Räuber Donnerpups in der Stadtbücherei Eschenbach
Der bundesweite Vorlesetag für Kinder hielt nach zweijähriger Zwangspause Einzug in die Stadtbücherei. Für diese im Jahr 2004 von „Die Zeit“, der Stiftung Lesen und der Deutsche Stiftung Bahn initiierte Veranstaltung hatte sich Bibliothekarin Petra Danzer Bürgermeister …
Eschenbach
17.11.2022
Eschenbacher Imker ziehen erfreuliche Bilanz
Der Imkerverein blickt erwartungsfroh in die Zukunft. Die Bienenfreunde freuen sich über die ansteigende Zahl an Jungimkern, zunehmend Frauen, und feiern im nächsten Jahr 140-jähriges Bestehen. Bei der Jahreshauptversammlung im Kleintierzüchterheim räumte Reinhold Gietl …
Eschenbach
15.11.2022
Prüfende Blicke bei Verkehrswacht
Mehr als zwei Stunden lang herrschte in der neuen TÜV-Halle in der Kirchenthumbacher Straße reger Andrang. Der Jahreszeit angepasst war der kostenlose Service, den die Gebietsverkehrswacht allen Autofahrern anbot. Bremsen, Beleuchtung, Bereifung, Wasser und Licht wurden …
Speinshart
09.11.2022
Jäger aus Eschenbach und Umgebung kritisieren Staatsforsten
Das Gemeindezentrum war erneut Tagungsstätte für die Jahreshauptversammlung der Jäger aus Eschenbach und Umgebung. Vorsitzender Norbert Ferstl bezeichnete den schwachen Besuch der Veranstaltung als "Corona-Schaden". Es sei schwierig, die Mitglieder wieder zu einer …
OnetzPlus
Eschenbach
04.11.2022
Parkplätze müssen in Eschenbach für barrierefreien Übergang weichen
Die Stadt Eschenbach soll barrierefreier werden. Gleich mehrere Maßnahmen hierzu wurden nun im Stadtrat besprochen. Neben einer Rampe, soll es künftig auch einen abgesenkten Bordstein geben – dafür müssen auch Parkplätze weichen.
OnetzPlus
Eschenbach
04.11.2022
Von der Gewaltenteilung bis zur Gebietsreform: Die Geschichte des Amtsgerichts Eschenbach
Die Mauern des Amtsgerichts in Eschenbach könnten wohl viele Geschichten erzählen. Seit 160 Jahren prägt das Gebäude das Stadtbild. Ein Blick zurück auf die bewegte Vergangenheit des Gerichts – und in eine Zukunft, die offen bleibt.
OnetzPlus
Eschenbach
03.11.2022
Millionen-Überschuss im Eschenbacher Haushalt
Satte Gewerbesteuereinnahmen bescheren der Stadt Eschenbach ein millionenschweres Plus in ihrem Haushalt für das Jahr 2020. Schon jetzt wird aber an die steigenden Energiekosten in Zukunft gedacht – auch bei der Weihnachtsbeleuchtung.
« erste Seite
‹ vorherige Seite
nächste Seite ›
Nach oben
Oberpfalz
Amberg
Cham
Eschenbach
Kemnath
Nabburg
Oberviechtach/Neunburg
Regensburg
Schwandorf
Sulzbach-Rosenberg
Tirschenreuth
Vohenstrauß
Weiden/Neustadt a.d.WN
OnetzPlus
oberpfalzdaheim.de
Wirtschaft
Gericht & Justiz
Polizei & Feuerwehr
Sport
Fußball in der Oberpfalz
Blue Devils Weiden
SpVgg SV Weiden
Handball
Basketball
Sport aus der Oberpfalz
Sport überregional
Bayern | Politik | Kultur
Bayern
Politik
Kultur
Themen
Bauen & Wohnen
BesserWissen
Damals - Geschichte der Oberpfalz
Essen & Genießen
Hochzeit
Landwirtschaft
Wetter
Abo | E-Paper
Abo & Service
E-Paper
OnetzPlus
Portale | Magazine
LEO
Leserreisen
Lesershop
Magazine
NT-Ticket
OWZ
Anzeigen
Anzeigen Übersicht
Anzeige aufgeben
Ausbildung-Oberpfalz.de
Experten der Region
Immobilien
Prospekte
Stellen
Trauer
Zweisam - die Partnersuche
Mediadaten
Mein Onetz
Mein E-Paper
Kursangebote
Leseranwalt
Netiquette
Push-Meldungen
RSS-Feeds
Newsletter
Podcast
WhatsApp
TV-Programm